岡山の住まい応援サイト
楽家ドットコム
岡山県、岡山市や倉敷市の不動産情報を多数掲載。地域密着型不動産情報サイト「楽家.com」にお任せ下さい!!
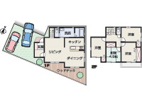
メイプルタウン下中野
価格:2566〜2609万円
人気の下中野に魅力的な価格の新築住宅が2棟完成
詳細
|写真|
地図
|
お問い合せ
1
|
2
|
3
|
4
|5
3号棟
・
ページトップへ
・
チラシ掲載物件 TOP
ナカタホーム TOP